GVF arquitectura

Nuestros ultimos proyectos

Vivienda unifamiliar entre medianeras en Calle Antonio Machado,Sax (Alicante)

En un entorno de viviendas unifamiliares entre medianeras sin un interés formal específico se nos encarga el proyecto para la ejecución de una vivienda unifamiliar destinada a una pareja joven con un programa funcional muy definido. La ajustada dimensión de la fachada del solar y el encargo de resolver un espacio de aparcamiento integrado en la vivienda definían una fachada en la que el hueco de acceso al garaje adquiria un protagonismo con una proporción considerable en el alzado principal del edificio. La vivienda se compone de dos volúmenes principales perceptibles a nivel de la calle con un deseo recíproco de ser independientes tanto desde un punto de vista material como geométrico y funcional. El volumen apoyado a cota de la calle resuelve el programa de acceso y garaje, el volumen que emerge en voladizo en planta primera resuelve el programa diurno de la vivienda: sala de estar-comedor, cocina y baño de uso común. A nivel de la planta segunda se proyecta un tercer volumen retranqueado y no perceptible desde el nivel de la calle que resuelve el uso de dormitorio. Expandimos la materialidad de la puerta de acceso al garaje, resuelta con un material metálico, a todo el volumen en el que se integra de tal modo que el hueco de acceso al garaje era un elemento construtivo totalmente integrado en un volumen que la contiene. El volumen de planta primera en voladizo tiene una clara intencionalidad de contrastar cromática y materialmente con éste. Dos patios ubicados estratégicamente en la parcela, uno de ellos recayente a la fachada del edificio que permite la prolongación funcional de la sala de estar-comedor y de la cocina y el segundo en la parte trasera para dar servicio a todas las estancias posteriores del edificio, enriquecen la iluminación y ventilación natural del edificio.



Proyecto básico de vivienda unifamiliar aislada en Passeig del Comtat 24, Pedreguer(Alicante)

El edificio de vivienda unifamiliar aislada que se proyecta consta de tres plantas, en planta sótano, planta baja y planta primera, destinadas todas ellas a uso residencial disponiéndose de otros usos en la planta sótano. La edificación se plantea con un máximo de adaptación tanto al terreno sobre el que se asienta como al programa de necesidades planteado. El acceso a la parcela, tanto de vehículos como de personas, se sitúa junto al linde norte, accediéndose a la edificacion por esta orientación. La construcción esta retranqueada de la calle principal con la que linda y de todos sus restantes lindes mas de 5 metros. La configuración topográfica del terreno en la que se proyecta la vivienda unifamiliar determina que se resuelva el acceso directo a esta desde la planta sótano, estando todas las plantas del edificio comunicadas interiormente mediante una escalera de comunicación vertical interior y un ascensor. El edificio se concibe atendiendo a su programa disponiendo los espacios de la planta baja para su uso fundamentalmente diurno, los de la planta primera para el nocturno, y combinando espacios que van destinados a un uso diurno con espacios pensados fundamentalmente para un uso nocturno en la planta sótano. Esta solución al programa funcional de la vivienda ha sido basada en las necesidades funcionales del promotor del edificio. La planta sótano además de albergar estancias con un uso residencial también integra espacios que se utilizarán como cuarto de instalaciones, spa-gimnasio, baño turco, o hall de acceso al edificio. Las instalaciones de energía solar y telecomunicaciones se colocarán sobre la cubierta del edificio.



Proyecto básico de vivienda unifamiliar aislada en Calle Lirio 8, Altea (Alicante)

El edificio de vivienda unifamiliar aislada que se proyecta consta de tres plantas, en planta semisótano, planta baja y planta primera, destinadas todas ellas a uso residencial disponiendose de otros usos en la planta semisótano. La edificación se plantea con un máximo de adaptación tanto al terreno sobre el que se asienta como al programa de necesidades planteado. El acceso a la parcela, tanto de vehículos como de personas, se sitúa junto al linde noreste, accediendose a la edificación por esta orientación. La construcción queda retranqueada de la calle principal con la que linda mas de 7 metros y de todos sus restantes lindes mas de 5 metros. El edificio consta de dos plantas desniveladas sobre la rasante para la ubicación del programa de vivienda unifamiliar y una planta semisótano, resolviendose el acceso directo a este desde la planta primera con un pequeño desnivel desde la calle. El edificio se concibe atendiendo a su programa disponiendo los espacios de la planta baja para su uso fundamentalmente diurno y los de la planta primera para el nocturno. Ambas plantas se unen mediante la escalera de comunicación vertical interior y el ascensor. La planta semisótano además de albergar estancias con un uso residencial también integra espacios que se utilizarán como cuarto de instalaciones, almacén, trastero, lavado, spa-fitness, sauna, cine y salón de juegos. Las instalaciones de energia solar y telecomunicaciones se colocarán sobre la cubierta del edificio.



Proyecto de rehabilitación integral de vivienda unifamiliar aislada en suelo rústico de Cocentaina (Alicante)

La edificación objeto de rehabilitación se compone de una única planta destinada al uso residencial de vivienda, con una superficie construida de 60 metros cuadrados. Un porche cubierto y abierto, rodea esta edificación en todos sus lados, salvo en el lado occidental ocupando la considerable superficie de 110 metros cuadrados. La intervención propuesta se basa en destinar la superficie ocupada por el porche al uso residencial ampliando, de este modo, la superficie construida de la vivienda, ascendiendo esta después de la ampliación a 170 metros cuadrados. La vivienda propuesta dispone de todas sus estancias en planta baja y está integrada por: vestíbulo de acceso, salón-comedor, cocina, despacho, dos dormitorios dobles, dos vestidores integrados en los dormitorios, un baño de uso común, un baño de uso privativo del dormitorio principal y un aseo. Desde el punto de vista volumétrico la intención del proyecto es la de transformar una edificación que no presentaba ningún tipo de interés formal. Para ello, se sustituye la totalidad de la cubierta existente resolviendo la nueva cubierta mediante una cubierta inclinada compuesta de dos faldones que expresan geométricamente su intención de ser independientes proyectándose a distintos niveles. El faldón que define las áreas de uso diurno se proyecta a una cota más alta y se pliega para subrayar la dimensión vertical de los espacios que cobija. El faldón que resuelve la cobertura de los espacios de uso nocturno delimita espacios cuya dimensión vertical esta más controlada, ya que el uso de dormitorios a los que se destinan así lo precisan. El contraste entre los grandes huecos acristalados y los revestimientos pétreos de las fachadas dotan a la vivienda de una nueva personalidad constructiva de la que en su estado original carecía.



Vivienda unifamiliar entre medianeras en Calle Luis Amigo 33,Alicante

La parcela se ubica en el extrarradio de la ciudad de Alicante, en un barrio residencial cuya tipología edificatoria característica es la vivienda social, no presentando las construcciones del entorno un lenguaje o carácter arquitectónico de especial interés. En una parcela que se encontraba construida por una edificación que no presentaba un correcto grado de conservación se determina como primera decisión proyectual el derribo integral del edificio existente y su sustitución por una edificación de nueva planta. Se propone un nuevo edificio definido volumétricamente por una forma prismática que responda mediante su clara definición geométrica y su pureza formal a la indefinición conceptual que define al entorno en la que se ubica. Se decide dialogar con el lugar mediante un lenguaje abstracto. El edificio va destinado a resolver el programa funcional de vivienda unifamiliar y está compuesto de tres plantas. En planta baja se resuelven los usos residenciales, y se compone de un estar-comedor, una cocina, un dormitorio con vestidor y un baño. La planta primera está compuesta por un espacio totalmente diáfano que se concibe como espacio polifuncional. Un volumen en ático comunica los espacios interiores de las viviendas con una terraza transitable que extiende los usos interiores del edificio a un aprovechamiento del espacio exterior.



Edificio plurifamiliar entre medianeras compuesto de 5 viviendas y 7 plazas de garaje en Calle Luis Vives 18 Cocentaina(Alicante)

El programa de necesidades que se recibe por parte del promotor para la redacción del presente proyecto se basa en la ejecución de un bloque de viviendas plurifamiliar compuesto de cinco viviendas en sus plantas sobre rasante y de plazas de garaje y trasteros en su única planta bajo rasante. El edificio se compone de dos volumemes claramente difereciados, tanto material como volumetricámente, con dos funciones urbanas diferentes: el primero de los volumenes se ajusta en planta a los lindes de la parcela y se extrusiona hasta la máxima linea de cornisa permitida por la normativa urbanística, el segundo vomunen que compone el edificio se independiza del anterior sobrepasando los límites de la parcela en voladizo subrayando la linealidad que caracteriza a una de las dos clayes confluyentes en la parcela y remarcando el carácter de parcela en esquina del solar en el que se integra En la planta semisótano se resuelve el uso de aparcamientos con siete plazas de garaje disponiéndose además de trasteros. En la planta baja se proyectan dos viviendas simplex. La planta primera se compone de una vivienda simplex, que se corresponde volumétricamente con el cuerpo que adquiere una materialidad diferenciada del volumen que define el resto del edificio y que se independiza geometricámente de éste constituyendo un voladizo, y resuelve la planta inferior de dos viviendas duplex que también ocuparán la planta bajo cubierta, accediendo desde esta última planta a dos terrazas independientes pertenecientes a cada una de las dos viviendas tipo duplex proyectadas.




Edificio plurifamiliar entre medianeras compuesto de 2 viviendas duplex en Calle Lorcha 20 Cocentaina(Alicante)

Aunque la tipología que define esta edificación es la de bloque entre medianeras la particularidad de que ninguna de las parcelas colindantes con el solar estaba edificada suponía que debíamos enfocar el edificio como una construcción de nueva planta aislada que, durante un tiempo indeterminado, va a tener el carácter y la personalidad de edificio aislado. Debido al aislamiento que supone la ubicación de la edificación en un suelo urbano sin parcelas edificadas a su alrededor, optamos por una construcción resuelta con un lenguaje abstracto, claramente definida por su geometría, que respondiera de manera contundente a la indefinición de su entorno más próximo. Por otro lado, la exigencia del cumplimiento de la normativa urbanística acabó de definir volumétricamente el edificio. El promotor requirió resolver funcionalmente dos vivendas tipo dúplex integradas en un bloque compacto. Con el fin de minimizar los espacios de circulaciones y maximizar los espacios habitables se superponen los tramos de las escaleras que componen el inmueble de tal modo que se sectoriza e independiza su uso independiente para cada vivienda a nivel de planta baja consiguiendo, de esta manera, la reducción del espacio ocupado por elementos de circulación. Una terraza recayente a fachada a nivel de planta baja y un patio posterior de parcela permiten la ampliación del programa funcional interior al exterior del edificio. Cada uno de los dos dúplex consta de una planta en la que se resuelve el programa funcional con un salón-comedor, cocina y baño y una planta diáfana destinada a usos complementarios.



Vivienda unifamiliar en Av.Buenos Aires, Chiva (Valencia)

En una urbanización cuya tipología edificatoria característica es la de viviendas unifamilares aisladas se proyecta un edificio de vivienda unifamiliar retranqueado de todos los límites que definen la parcela. El edificio se compone de tres plantas, dos de ellas sobre rasante en planta baja y planta primera y una planta de sótano totalmente enterrada en la que se resuelve el uso de garaje y gimnasio. La planta baja se destina a los usos diurnos albergando un hall de acceso, una cocina, un salón-comedor, y un baño. La planta primera se destina a resolver los usos nocturnos proyectándose en esta 4 dormitorios, un baño de uso común y un baño privativo del dormitorio principal, que también dispone de vestidor. Concebidos como elementos adheridos al volumen principal que permiten que el uso de la vivienda se expanda a areas exteriores se proyecta una terraza en voladizo en la parte anterior y un porche abierto en la parte posterior que define un área cubierta como espacio de transición entre la edificación cerrada y la piscina proyectada en la parte trasera de la parcela con el objeto de que esta zona tenga un carácter más íntimo y privado. La cubierta de este porche es al mismo tiempo la terraza que permite una comunicación entre el dormitorio principal y la zona de la piscina. La cubierta del edificio está compuesta por dos faldones proyectados a distinto nivel, materializando la diferencia de cota de estos dos planos inclinados con un paño de cristal que enriquece lumínicamente el dormitorio principal de la vivienda.



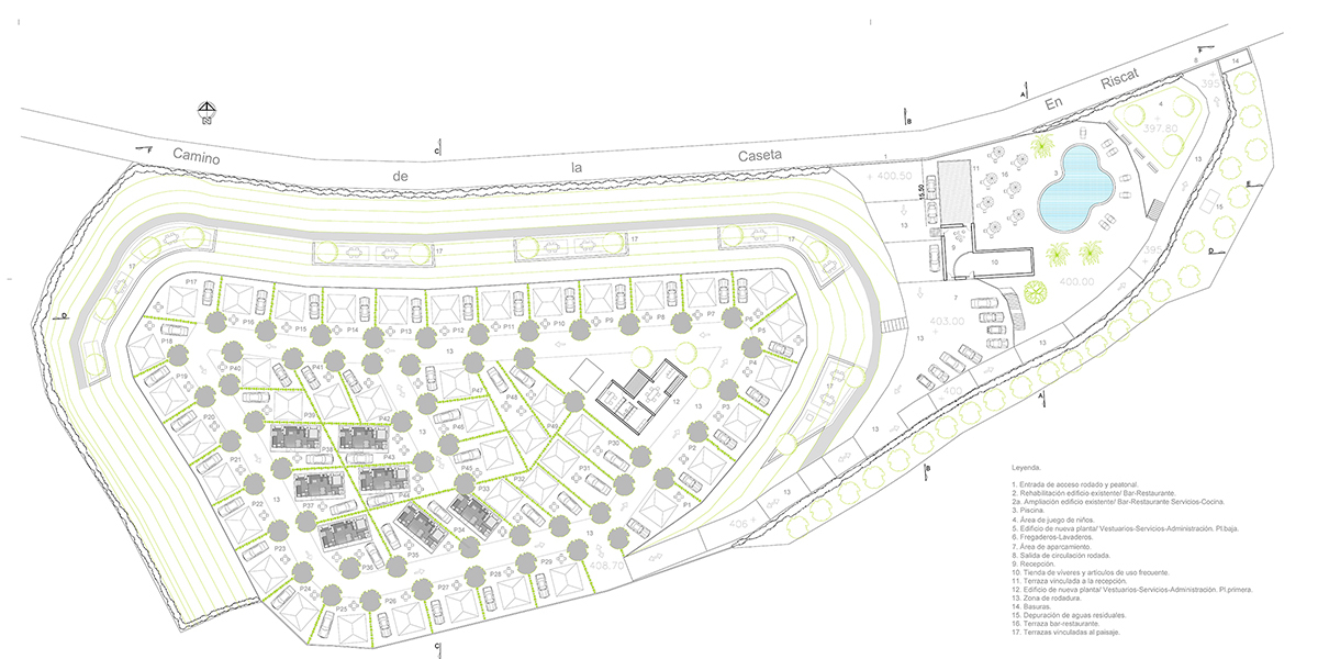
Proyecto para la autorización en suelo no urbanizable de la actividad terciaria de Campamento de Turismo en Camina de la Caseta en Riscat, Planes de la Baronia (Alicante).

En la parcela se presenta una construcci ón en estado ruinoso que va a ser objeto de una rehabilitaci ón y ampliación. En el volumen rehabilitado en planta baja se desarrollará el programa de Bar-Restaurante referido a la zona de mesas y de barra, mientras que en el volumen ampliado de planta baja se desarrollaró el programa referido a los servicios vinculados al bar-restaurante: cocina, servicio de señoras y minusválidos, y servicios de caballeros. Se debe tener presente que la construcción originaria tan solo puede ser ampliada, tanto horizontal como verticalmente, a partir de una distancia de 15 metros contados a partir cualquiera de los lindes existentes. En planta primera de la ampliación del edificio existente que se pretende realizar se desarrollarán los programas de supermercado o tienda de víveres o artículos de uso frecuente y la Recepción. La globalidad de programas que coexisten en el edificio rehabilitado y ampliado son: bar-restaurante, supermercado y recepción, cada uno de ellos tiene acceso de manera independiente a cada uno del resto de manera que puede plantearse en un futuro el estudio de la actividad de manera global o independientemente para cada uno de ellas. La recepción debe estar situada próxima a la entrada para facilitar a los clientes la información necesaria en la contratación de los servicios.
En el ámbito determinado por las áreas exteriores contiguas a la edificación existente cuyos niveles corresponden con el nivel de acceso a los espacios donde se proyectan la Recepción y el supermercado y los niveles inferiores a éste se proyectan áreas exteriores de aparcamiento de vehículos y áreas exteriores de esparcimiento. Las referentes al aparcamiento tienen una relación funcional con los programas de Recepción, Supermercado y Bar-restaurante. Las áreas referentes al esparcimiento consisten en: una piscina diseñada para que puedan utilizarla tanto adultos como niños diferenciando distintas zonas con diferentes niveles, una terraza exterior vinculada con la actividad del bar-restaurante y a la mencionada piscina, por otra parte se diseña la zona oriental, la que se dispone en el nivel más inferior, como área de juegos de niños. Los diferentes niveles que presenta la parcela quedan comunicados por rampas y escaleras exteriores de suave pendiente.
La parcela dispone de una entrada principal en la que se resuelve tanto el acceso rodado como el peatonal, y una salida para tráfico rodado independiente que permite y facilita una mayor fluidez y funcionalidad en el tráfico de vehículos que caracteriza las actividades relacionadas con el programa objeto del presente estudio, Campamento de Turismo de primera categoría.
En el área correspondiente con el nivel más elevado de la parcela se desarrolla el programa de zona de acampada. La superficie total de la zona de acampada es de 4.392,28 metros cuadrados. Se proyectan 49 puestos de acampada, de los que se destinan 7 a la actividad de Movil. La superficie destinada a zona de acampada estará dividida en parcelas perfectamente delimitadas mediante separaciones vegetales autóctonas. Se tiene en cuenta la disposición de zonas de sombras mediante la plantación de arbolado, éste a su vez potencia la función de división de las distintas parcelas de acampada.
Dentro del ámbito destinado a la zona de acampada se proyecta un edificio de nueva planta. Este tiene como objeto albergar la parte del programa exigido por el reglamento que no puede ser desarrollado en la rehabilitación y ampliación del edificio ya existente: el de vestuarios y servicios, y el de administración. Por otro lado al desarrollarse esta parte del programa en el mismo ámbito que la zona de acampada se satisface una mayor funcionalidad en el desarrollo de la actividad relativa a campamento de turismo. El edificio se estructura en una serie de muros de carga paralelos y que se integran en la parcela en que lo delimita, estos muros estructurales a su vez hacen la función de cerramiento. Junto con los forjados marcados en fachada, estos muros diferencian diversos módulos en los alzados del edificio que permiten diferenciar con mucha claridad cada una de las actividades que integran este edificio. La funcionalidad y la claridad referida al entendimiento del edificio, así como aspectos vinculados a una mayor lógica constructiva y a un mayor control económico de la obra, son la esencia que envuelve la idea del proyecto de esta construcción de nueva planta. En planta baja se desarrollan los programas de: vestuarios-servicios de mujeres, vestuarios-servicios para minusválidos, vestuarios-servicios para caballeros, espacio para el uso público de lavadoras y secadoras, y un espacio destinado para el vertido especial de los inodoros químicos. Por otro lado se dispone en planta baja el acceso al programa de administración y dirección del campamento de turismo que se desarrolla en dos plantas. En planta baja, además del mencionado acceso, se proyecta un espacio de enfermería vinculado a la actividad exterior en su mismo nivel. En planta primera se desarrollan los usos de sala de reuniones, archivo y despacho personal del Director Administrativo que, por ser un campamento de primera categoría, debe contratar preceptivamente la propiedad del camping. También se proyecta en esta planta un baño pues existe la posibilidad de que el mismo personal encargado del mantenimiento del camping pueda ejercer las funciones de personal administrativo. La globalidad de programas que coexisten en el edificio de nueva planta se disponen de tal modo que cada uno de ellos tiene acceso de manera independiente a cada uno del resto de manera que puede plantearse en un futuro el estudio de la actividad de manera global o independientemente para cada uno de ellas.
En el ámbito exterior contiguo al edificio de nueva planta se proyecta una construcción formada por una estructura ligera metálica cubierta por unas planchas de policarbonato transparente, de manera que no se materializa una construcción de carácter pesado sino que lo que se pretende obtener es la materialización de una simple cubrición ligera que proteja de los agentes medioambientales para poder desarrollar en ella la actividad siempre agradable en un espacio exterior vinculada a los lavaderos y fregaderos.
En los taludes de tierra natural que salvan el desnivel existente entre la zona más elevada de la parcela y el camino Camí de la Caseta En Riscat, así como parcelas de vecinos colindantes, se practicaran las sustracciones de tierra pertinentes para habilitar en ellos diferentes espacios independizados al aire libre, vinculados mediante la habilitación de un camino que los enlaza, en los que poder realizar actividades tales como barbacoas, juegos, descanso y contemplación del extraordinario paisaje existente, exposición de materias autóctonas de la zona...... Esta sencilla intervención permite una mayor integración en el entorno existente y un mayor disfrute de él, a su vez, dota de interés y de un mayor encanto a la apariencia visual que presentan los actuales taludes de tierras naturales existentes.
El camping estará cerrado en todo su perímetro. Se utilizan materiales en las vallas o cercas basados en protecciones de madera y vallados vegetales teniendo en cuenta la disposición y el color de tal modo que permitirán una integración armónica con el entorno.
El campamento de turismo, dentro de su programa de actividades, debe albergar la construcción de una piscina para adultos y niños. La piscina objeto de proyecto tiene una superficie de 120 metros cuadrados, con una forma irregular ,y totalmente enterrada, se destina tanto para el uso público de personas adultas como de niños presentando su superficie en dos áreas a distintos niveles. De este modo, el área correspondiente a uso de adultos presenta una mayor profundidad media que la correspondiente al uso de niños.